■マルイト難波ビル 14階 賃料269.786万
■天井高3000㎜で開放感のある室内!
物件概要
| 物件名 | 浪速区湊町1丁目 14階 貸事務所 | ||
|---|---|---|---|
| 住所 | 大阪市浪速区湊町1丁目2-3 マルイト難波ビル 14階 | ||
| 種目 | 貸事務所 | ||
| 交通1 交通2 交通3 |
JR大和路線 難波駅 徒歩1分 大阪メトロ四ツ橋線 難波駅 徒歩1分 |
||
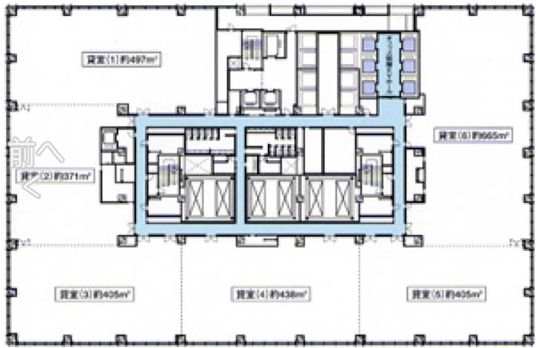
| 賃料 | 269.786万円 | 専有面積 | 405.41m2 |
| 管理費等 / 共益費等 | 539,572円 | 保証金 / 敷金 | 敷金:29,431,200円 |
| 構造 | 鉄骨鉄筋コンクリート造(SRC造) | 礼金 | |
| 駐車場 | 更新料 | ||
| 築年月 | 2009年07月築 | 所在階 / 階数 | 地上31階建て |
| 契約区分 ・ 期間 | 普通借家契約 | 方位 | |
| 引渡し | 即時 | 取引形態 | 仲介(媒介) |
| 条件 | 家賃保証会社 | ||
| テナント使用条件 | |||
| 設備 | 個別空調・エレベーター低層6基、高層4基・機械警備24時間利用対応・制振ダンパー設置・光ファイバー・OAフロア | ||
| 備考 | |||
| 関連リンク | 情報更新日 | 2025年10月20日 | |
この物件の情報をスマートフォンで確認する
本件に関する詳細や内覧希望は
お気軽にお問い合わせください。
担当スタッフが丁寧にご案内いたします。
株式会社One&One不動産
営業時間:10:00〜18:00
定休日:第一、第三火曜日、毎週水曜日
お電話でのお問い合わせ
フリーダイヤル0120-268-101
WEBでのお問い合わせ
お問い合わせをする